Home Work News Profile Contact Media
TRI ÂN

STUDENT HOUSING NOVA GORICA

Location

Nova Gorica, Slovenia

Year

2008

Status

competition entry, 2. prize

with Domen Mozetic

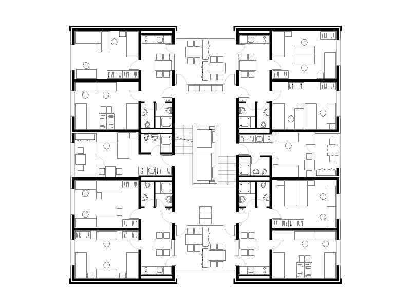
Competition proposal for student housing in Nova Gorica. Design takes into account urbanism of modern city Nova Gorica, connections with nature, natural ventilation and daylight, social interactions and building economy.

Natečajni predlog za študentski dom v Novi Gorici. Projekt upošteva urbanizem modernega mesta, povezanost z naravo, naravno osvetlitev in zračenje, socialne interakcije in stavbno učinkovitost.

Stavba študentskega doma je postavljena na križanje osi magistrale in potoka Koren, ob sredino mestnega okoliša javnih vsebin. Z vertikalno pojavnostjo smiselno prostorsko združuje okoliš podobnih programov in tako predstavlja rob in vrata mesta v naravo. Zasnova z majhno pozidanostjo parcele in odprtostjo prostora nadaljuje izhodišča vrtnega mesta.

Pred vhodom je oblikovan družaben prostor s terasami, primeren za druženje, zunanje prireditve.

Programi v stavbi se vežejo na svetlo stopnišče po sistemu medetaž, kar omogoči boljšo povezanost in prihranek prostora.

Notranjost se povezuje z zunanjostjo z ložami, ki so zaščitene pred dežjem in soncem in nudijo razglede v mesto in naravo.

STUDENT HOUSING NOVA GORICA Detail 1
STUDENT HOUSING NOVA GORICA Detail 2
STUDENT HOUSING NOVA GORICA Detail 3
STUDENT HOUSING NOVA GORICA Detail 4
STUDENT HOUSING NOVA GORICA Detail 5
Back to Projects