Home Work News Profile Contact Media
TRI ÂN

TISINA HOUSE

Location

Tisina, Slovenia

Year

2017

Status

project

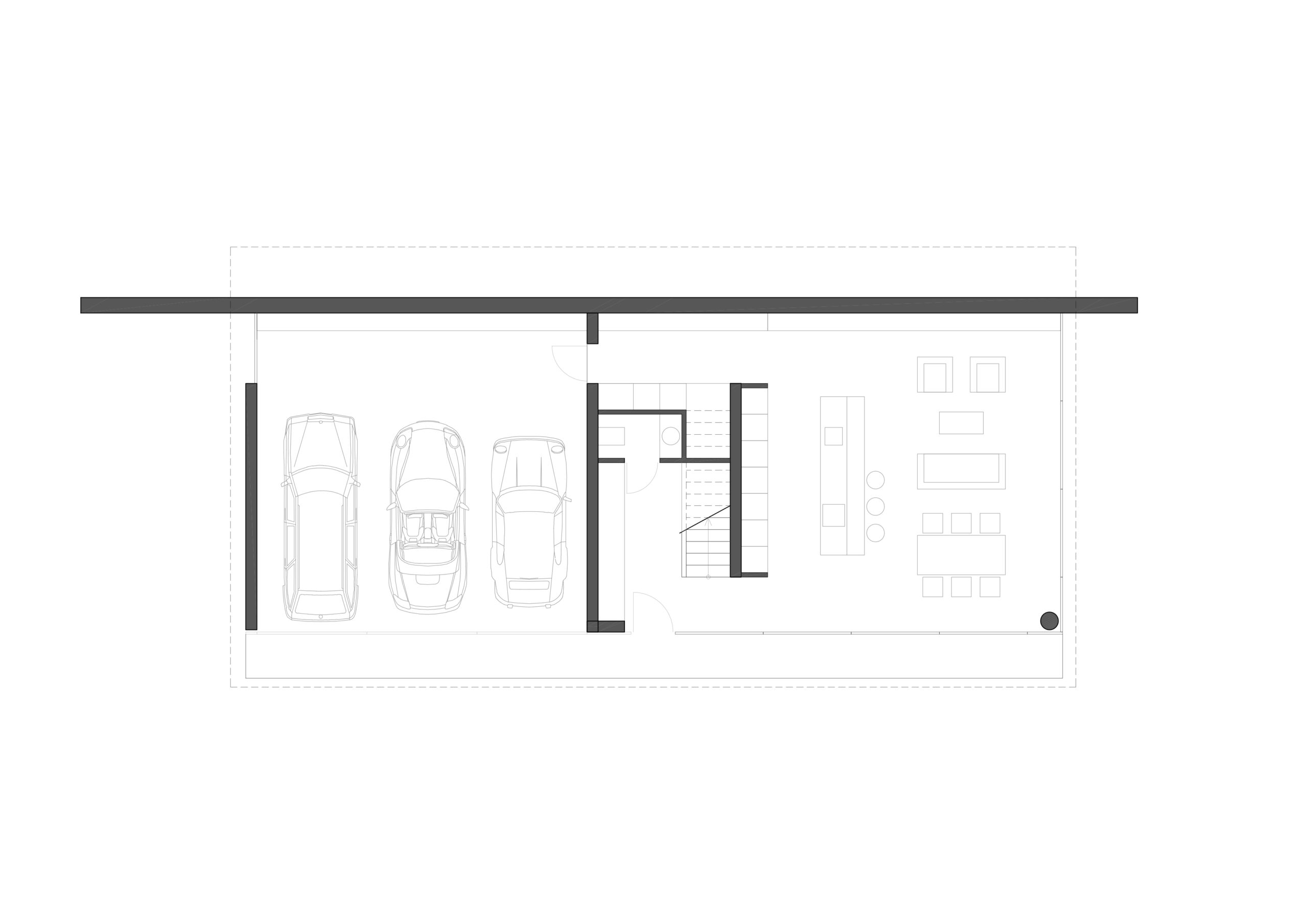
Tisina House is a house for a contemporary family living on a countryside in Prekmurje region. Shape of the house with its roof takes inspiration in the traditional design and low flat region. Floorplan is an answer to the specific site and client requirements. Large garage takes more public, entrance side of the house while living room merges with the vast natural surrounding.

TISINA HOUSE Detail 1
TISINA HOUSE Detail 2
TISINA HOUSE Detail 3
TISINA HOUSE Detail 4
Back to Projects