Home Work News Profile Contact Media
TRI ÂN

TWO-FAMILY HOUSE IN PREDOSLJE

Location

Predoslje, Slovenia

Year

2019

Status

project , under construction

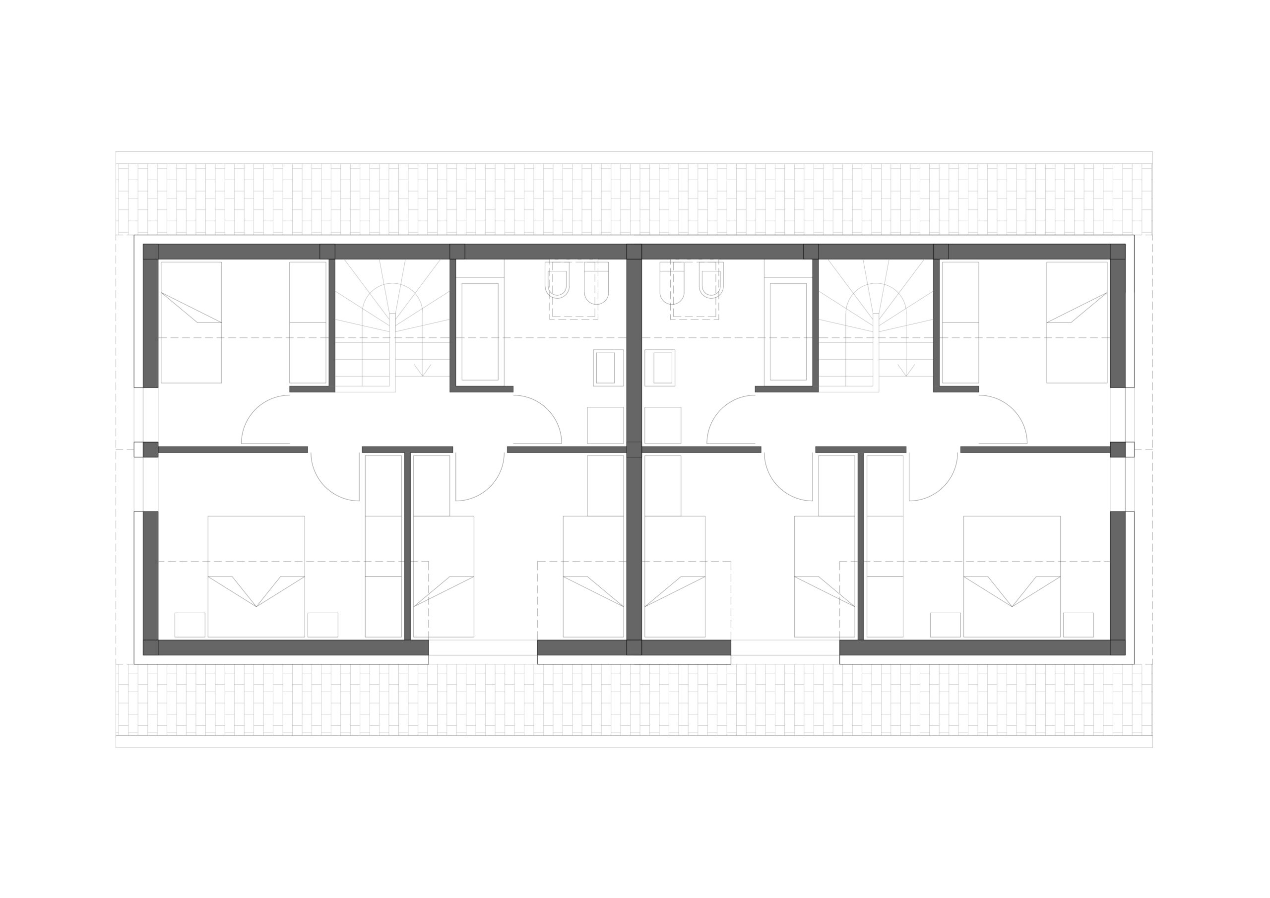
Project is a result of the Society of Saint Vincent de Paul’s charity campaign to build small social housing for two young families on a very restricted budget. We have carefully chosen the location for the building on the edge of a large plot, leaving center of the plot with mature trees untouched as a center point of the buildings assembly. Decision was made to make two equal units, both with living room, kitchen and private garden on the ground floor. Entrances of the two units are facing large public area, while living rooms are opening towards private garden facing the sun. There are 3 bedrooms on the upper floor of each unit. The design of the house is humble and follows local typology and characteristics.

TWO-FAMILY HOUSE IN PREDOSLJE Detail 1
TWO-FAMILY HOUSE IN PREDOSLJE Detail 2
TWO-FAMILY HOUSE IN PREDOSLJE Detail 3
TWO-FAMILY HOUSE IN PREDOSLJE Detail 4
Back to Projects