Home Work News Profile Contact Media
TRI ÂN

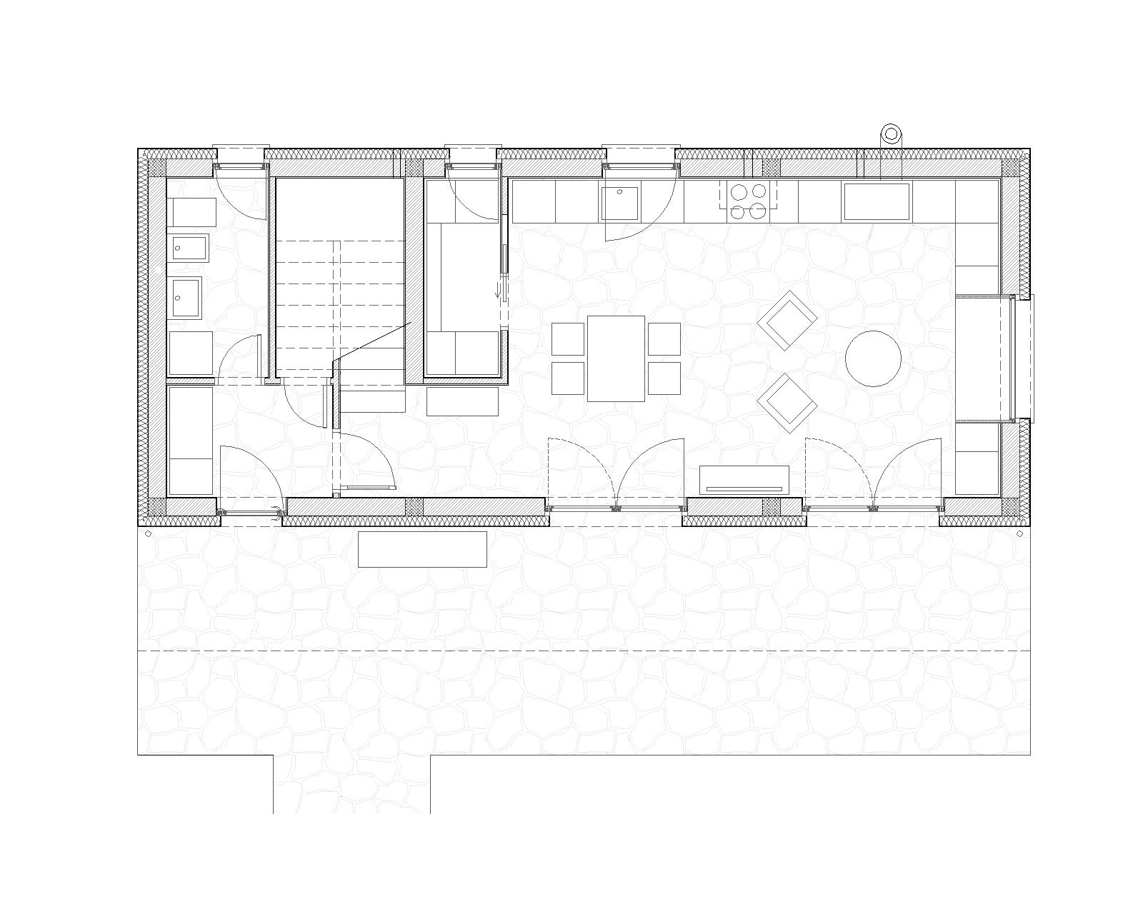
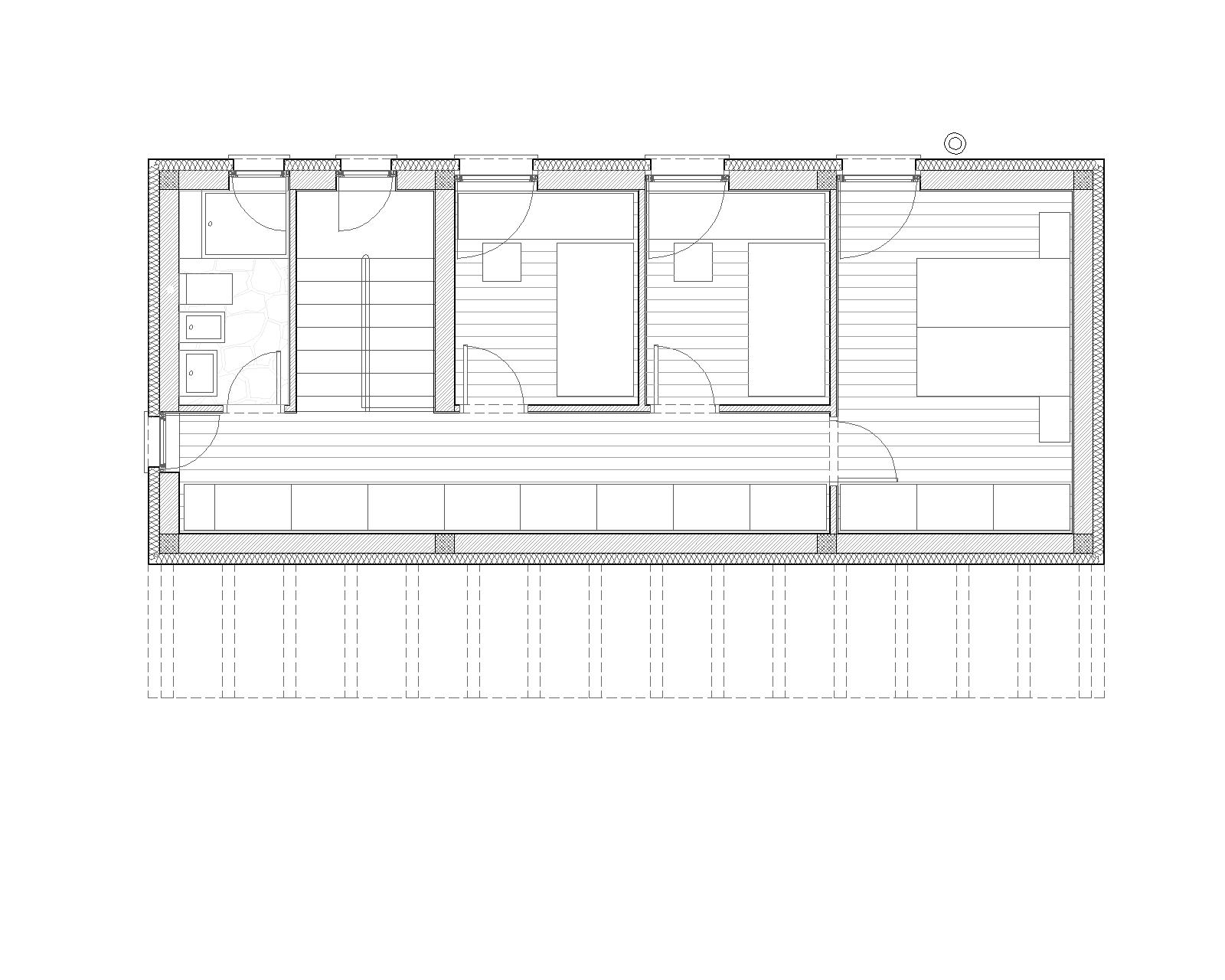
USTJE HOUSE

Location

Ustje, Slovenia

Year

2022

Status

project

Project for a family house in Ustje, Mediterranean village in Slovenia.

USTJE HOUSE Detail 1
USTJE HOUSE Detail 2
USTJE HOUSE Detail 3
Back to Projects