Home Work News Profile Contact Media
TRI ÂN

VILLA BARTOLOMEI

Location

Solkan, Slovenia,

Year

2007

Status

project

mentor Vojteh Ravnikar

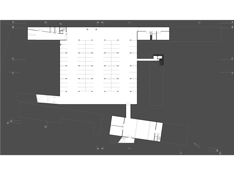
Refurbishment of villa Bartolomei in Solkan for expansion of local museum. The main villa is left untouched, additions are replaced with new buildings. It contains exhibition spaces, workshops, offices, library, multi-use hall and garages. The solution evolves from the interpretation of the villa layout with new use and context.

Projekt preureditve vile Bartolomei v Solkanu za nove potrebe Goriškega muzeja. Ohranjen je osrednji del vile, pomožni gospodarski objekti so nadomeščeni z novimi. Vsebuje razstavne prostore, delavnice, pisarne, knjižnico, večnamensko dvorano in garažo. Rešitev izhaja iz interpretacije zasnove furlanske vile z novo vsebino in kontekstom.

VILLA BARTOLOMEI Detail 1
VILLA BARTOLOMEI Detail 2
VILLA BARTOLOMEI Detail 3
VILLA BARTOLOMEI Detail 4
VILLA BARTOLOMEI Detail 5
VILLA BARTOLOMEI Detail 6
VILLA BARTOLOMEI Detail 7
VILLA BARTOLOMEI Detail 8
VILLA BARTOLOMEI Detail 9
VILLA BARTOLOMEI Detail 10
VILLA BARTOLOMEI Detail 11
VILLA BARTOLOMEI Detail 12
VILLA BARTOLOMEI Detail 13
VILLA BARTOLOMEI Detail 14
VILLA BARTOLOMEI Detail 15
Back to Projects